25 AIRPORT ROAD Flippin, AR

$999,900 - COMMERCIAL
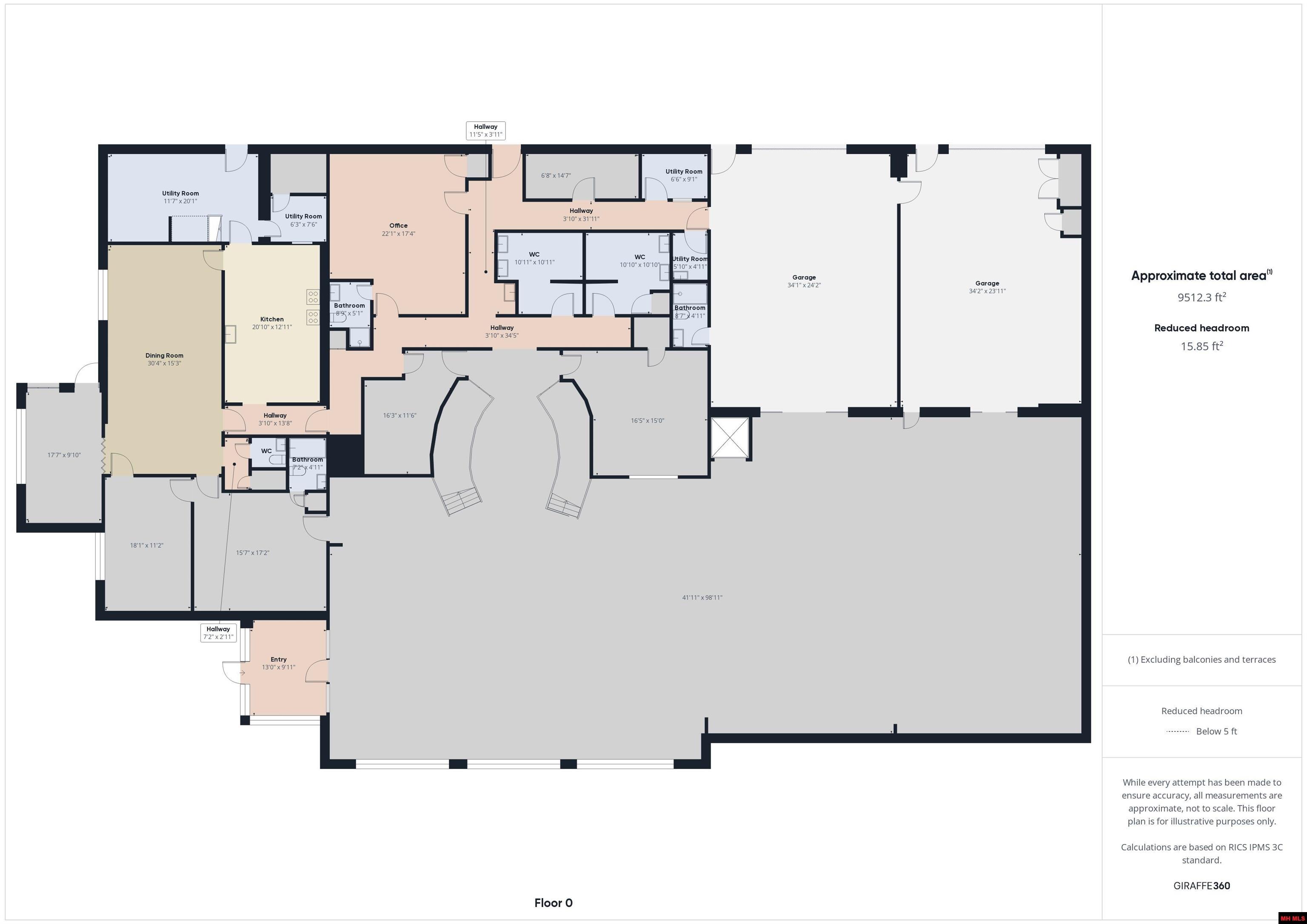
Discover a unique property developed by Forrest and Nina Wood of Ranger and Vexus Boats, now transformed into an extraordinary museum honoring over 60 years of family legacy. The main building spans 15,000+ sq ft, featuring stunning architectural details—custom wood beams, tongue-and-groove ceilings, a magnificent showroom, commercial-style kitchen, conference rooms, multiple offices, and full public restrooms. A wall of windows, a designer staircase, and an elevator ensure accessibility. Behind the main building, a 7-unit motel presents versatile possibilities: event space, restaurant, professional offices, or redevelopment. Lease options are negotiable and highly flexible, ideal for event centers, restaurants, or corporate offices. This historic estate blends timeless beauty with modern potential. Explore the walk-through video and floor plans for a remarkable opportunity to secure a space with limitless possibilities. (Some offices not pictured)
2.00 acres
Retail/Service
Active
Contact The Z-Team
Bob & Linda Zdora
Call or Text: 870.405.0793
Email: hellozteam@gmail.com
MLS # 133984

Listing By: PEGLAR REAL ESTATE GROUP
*Information deemed reliable but not guaranteed
Close
Request Info for MLS #133984
Please enter your first name.
Please enter your last name.
Please enter your email.