220 N CARDINAL DRIVE Mountain Home, AR

$450,000 - RESIDENTIAL
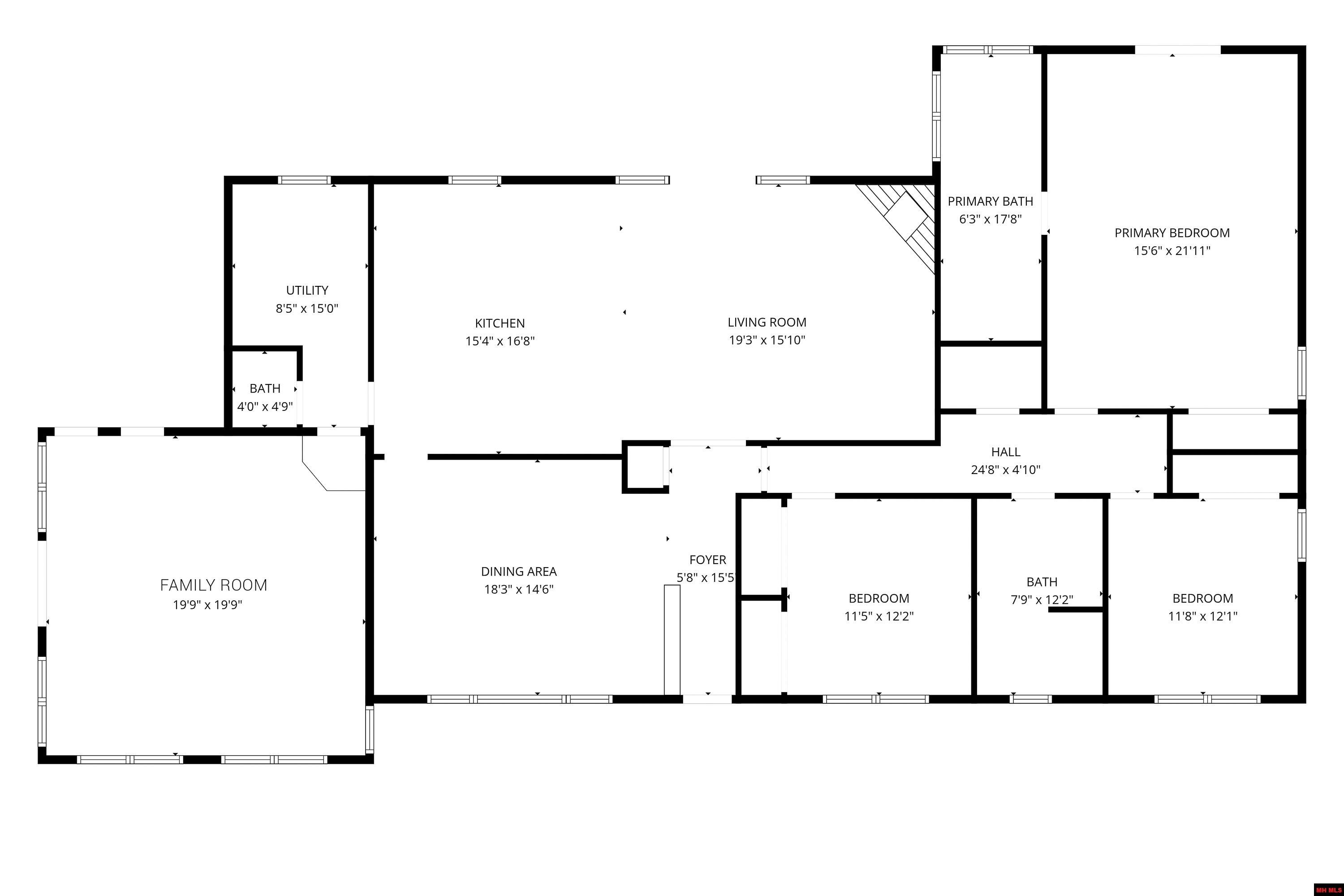
A great in town location this unique 1.58 acre m/l property offers space, versatility and convenience. This charming home features 3 bedrooms, 2.5 bathrooms, and a 4 car detached garage. A functional layout perfect for everyday living. There is an adjacent parcel also available to a buyer for additional price. One of the standout features is the detached 1-bedroom guest house, providing incredible flexibility - ideal for visiting family, rental income, a private home office, or multi-generational living. Enjoy generous living areas, a welcoming atmosphere, and the added bonus of extra accommodations just steps away. Located in a desirable Mountain Home neighborhood close to shopping, dining, medical facilities, and all the amenities the Twin Lakes area has to offer. This unique property is a rare find with both a spacious main home and a separate guest residence - schedule your showing today!
3 bds
2.1 ba
2860 sqft
Active
Contact The Z-Team
Bob & Linda Zdora
Call or Text: 870.405.0793
Email: hellozteam@gmail.com
MLS # 133322

Listing By: CENTURY 21 LeMAC REALTY
*Information deemed reliable but not guaranteed

Features

Appliances
  • Dishwasher
  • Refrigerator
  • Gas Surface Unit
  • Wall Oven
  • Microwave
  • Washer/Dryer Hookups
  • Water Filter
Fireplace
  • Gas Log
  • In Living Room
  • Two
  • Wood Burning
Heating
  • Central
  • Electric
  • Heat Pump
  • Natural Gas
Cooling
  • Attic Fan
  • Central Air
  • Electric
  • Heat Pump
Exterior
  • Brick
  • Wood Siding
Close
Request Info for MLS #133322
Please enter your first name.
Please enter your last name.
Please enter your email.