35 CHRISTENSEN ROAD Mountain Home, AR

$1,345,000 - COMMERCIAL
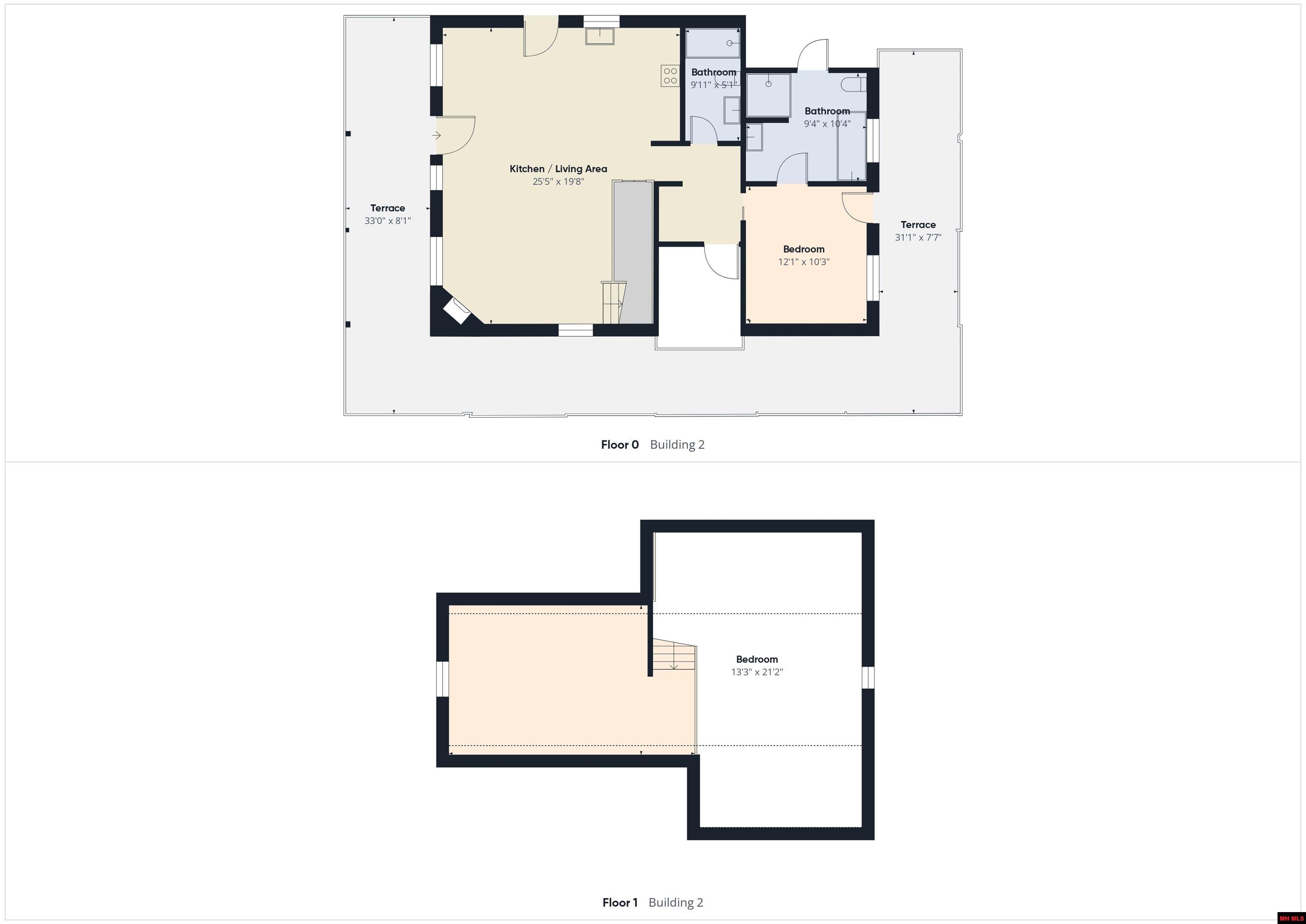
Fall Creek Cabins, a 5 STAR Idyllic Resort: Check out this turnkey escape just one mile from Lake Norfork and Buzzard Roost Marina. This profitable, well-maintained retreat comprises five modern cabins (built 2016–2018), a 30 x 28 insulated shop building, and a convenient RV spot with full hookups, all nestled in a friendly, high-demand market. Each cabin blends rustic charm with contemporary comforts, drawing seasonal travelers, anglers, and weekenders. Easy access, ample parking, and proximity to lake activities, dining, and shops drive occupancy and yield steady cash flow year-round. Fully booked summers with strong off-season demand, scalable with marketing, events, or expansion. A pristine turnkey opportunity for owner-operators and investors alike.
2.52 acres
Motels/Resort
Active
Contact The Z-Team
Bob & Linda Zdora
Call or Text: 870.405.0793
Email: hellozteam@gmail.com
MLS # 132203

Listing By: PEGLAR REAL ESTATE GROUP
*Information deemed reliable but not guaranteed
Close
Request More Info
Please enter your first name.
Please enter your last name.
Please enter your email.
Schedule A Showing
Please enter your question or comment.
* Do you wish to be contacted?