321 WALKER STREET Licking, MO

$115,000 - RESIDENTIAL
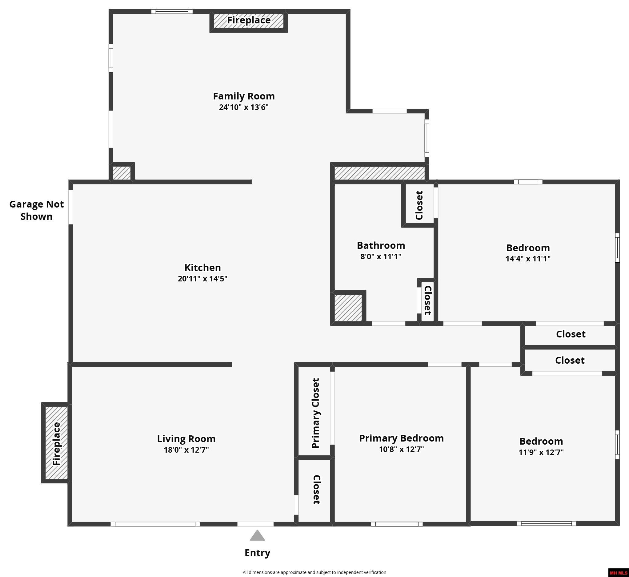
Nice home in nice location. Home has new plumbing, sewer, and water lines. CH/CA, Attached Garage with workshop, beautiful landscaping, Sparklight internet. Lots of Open space for the whole family! 2 Living Rooms. With Brick wood burning fireplaces. One being used for large dining room. Eat in Kitchen. Large covered in screened in back porch. Large Lot. Central heat and air. Close to the rivers and forests.
3 bds
1.1 ba
1596 sqft
Active
Contact The Z-Team
Bob & Linda Zdora
Call or Text: 870.405.0793
Email: hellozteam@gmail.com
MLS # 131942

Listing By: OZARK KOUNTRY REALTY
*Information deemed reliable but not guaranteed

Features

Appliances
  • Dishwasher
  • Refrigerator
  • Electric Range/Oven
  • Electric Surface Unit
  • Washer
  • Dryer
Heating
  • Central
Cooling
  • Central Air
Exterior
  • Brick
  • Vinyl Siding
Close
Request Info for MLS #131942
Please enter your first name.
Please enter your last name.
Please enter your email.