25 AIRPORT ROAD Flippin, AR

$1,500,000 - COMMERCIAL
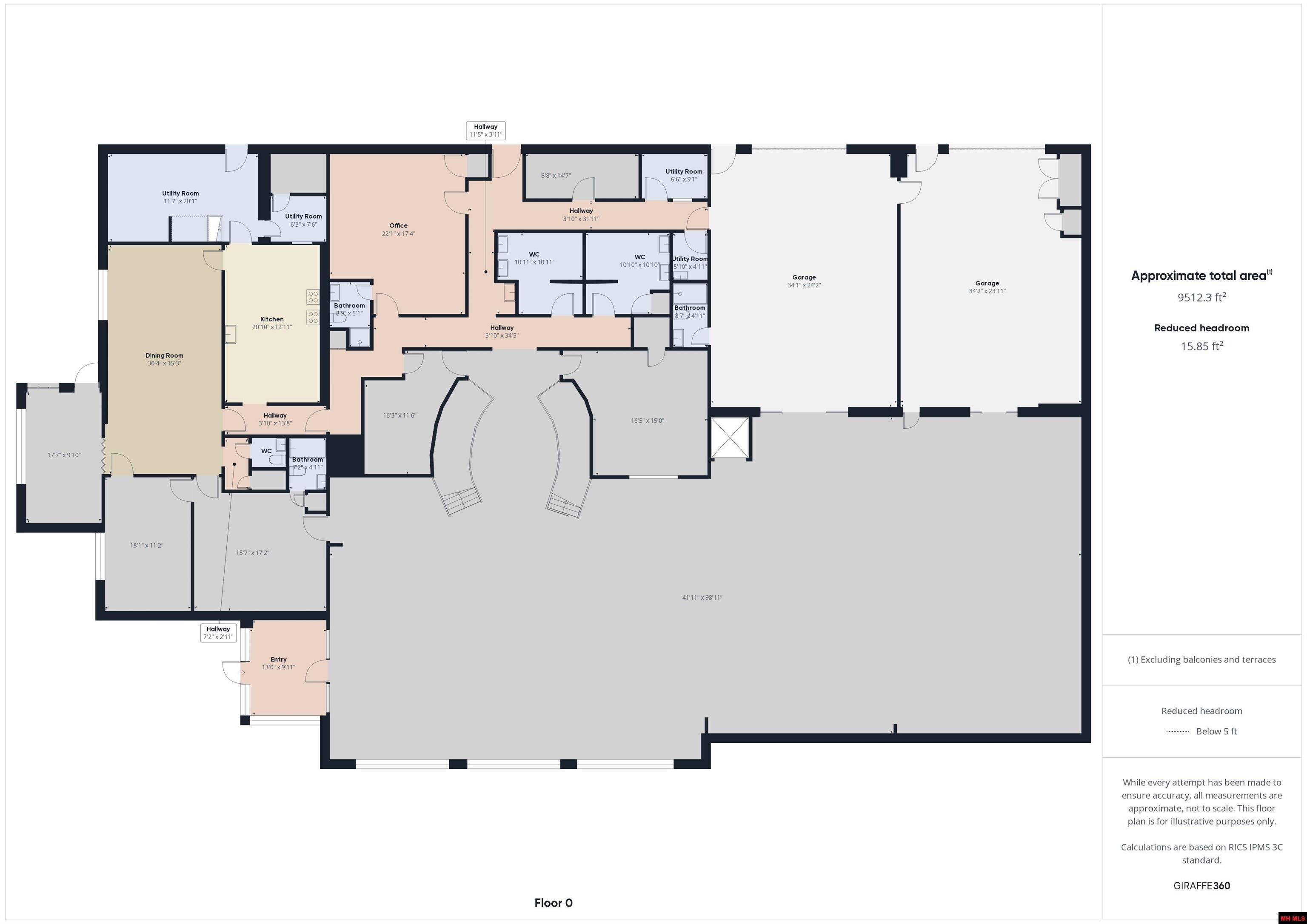
Discover a truly unique property developed by Forrest and Nina Wood of Ranger and Vexus Boats, now transformed into an extraordinary museum celebrating over 60 years of family legacy. The main building spans over 15,000 sq. ft. and features stunning architectural details, including custom wood beams and tongue-and-groove ceilings. The space boasts a magnificent showroom, commercial-style kitchen, conference rooms, multiple offices, and full public bathrooms. A wall of windows and a custom staircase highlight exceptional craftsmanship, complemented by an elevator for handicap accessibility. Behind the main building is a 7-unit motel, offering endless possibilities—event space, corporate retreat, or redevelopment. This historic estate beautifully blends timeless architecture with modern versatility. Explore the walk-through video and floor plans—an unparalleled opportunity to own a piece of history with limitless potential! *Multiple offices not pictured see video no contents remain.
2.00 acres
Retail/Service
Active
Contact The Z-Team
Bob & Linda Zdora
Call or Text: 870.405.0793
Email: hellozteam@gmail.com
MLS # 131227

Listing By: PEGLAR REAL ESTATE GROUP
*Information deemed reliable but not guaranteed
Close
Request More Info
Please enter your first name.
Please enter your last name.
Please enter your email.
Schedule A Showing
Please enter your question or comment.
* Do you wish to be contacted?